El proyecto marco obtiene la máxima puntuación de Europa por sus valores de sostenibilidad, inclusión y alta participación
La alcaldesa de Castellón, Begoña Carrasco, ha presentado esta mañana las líneas generales del Proyecto del Censal Parc. Ha estado acompañada por los concejales de Urbanismo y Medioambiente, y los técnicos municipales y autores del proyecto. La mejor noticia, es que ayer se aprobó sacar a concurso público la primera fase de esta actuación que podrá comenzar a ejecutarse en el segundo semestre del 2026, con un periodo de ejecución de 10 meses. El objetivo es inaugurarlo en los primeros meses del 2027.
Además, el diseño del parque ha obtenido las mejores puntuaciones de la Unión Europea en cuanto a sostenibilidad, inclusión y participación.
El Censal Parc es un ambicioso proyecto de bosque urbano en la zona este de Castellón, que se ejecutará por fases hasta alcanzar una superficie superior a la del parque de El Pinar del Grau, con 120.000 metros cuadrados.
El estudio marco que contempla la totalidad del proyecto, fue adjudicado a la empresa Peñín Arquitectos SLP, que disponía de cuatro meses para su elaboración. Una vez completado el estudio y revisado por los técnicos municipales, su contenido ha sido desvelado en la rueda de prensa de esta mañana.
Lo que más gustó de la oferta planteada por esta empresa, fue su respeto a las tradiciones agrícolas y la topografía del terreno, par aprovechar sus posibilidades como ejes del nuevo bosque urbano.
El desarrollo del diseño global ha cumplido con las expectativas. Aunque la ejecución se acometerá por fases, el diseño inicial ya marca una hoja de ruta que recoge las principales propuestas de los castellonenses en la encuesta y consulta ciudadana realizada por la entidad municipal.
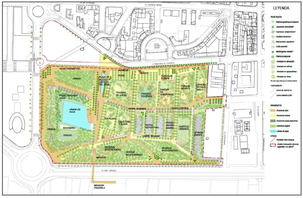
Imagen- Plano del diseño global del Censal Parc




La actuación global encuadra la zona delimitada por Avenida Fernando el Católico, por el oeste; calle Carcagente, por el norte, Ronda Este y avenida Chatellerault por el sur. Consta de dos ejes norte -sur y aprovecha también los caminos y sendas este-oeste para diferenciar puntos de tratamiento.
Primera fase

La ejecución de la primera fase, que ha salido ahora a concurso público, tiene una superficie de 38.348 metros cuadrados. La inversión prevista antes de adjudicación asciende a casi 7 millones de euros, cofinanciados con fondos Europeos Feder. esta es la que se quiere inaugurar para el primer semestre del 2027.
Como se puede observar en la imagen, la primera fase está delimitada por Fernando el Católico, y el camino de Almalafa.




Las actuaciones comenzarán por Fernando el Católico porque es la zona más cercana a las viviendas del casco urbano. Junto al vial se diseñan áreas de transición a modo de alameda, con arbolado de diferentes tipos y un diseño que permitirá: crear una zona de picnic, un quiosco que deberá salir a concurso; pérgolas y fuentes para hacer más agradable el paseo.
La superficie comprendida entre la alameda, junto a Fernando el Católico y el Camí de Almalafa, también se subdivide por parcelas y caminos transversles este-oeste, para dar lugar a espacios con tratamientos diferentes.

Junto al Consultorio Fernando el Católico, un espacio biosaludable, fundamentalmente para las personas mayores, con objeto de fomentar el envejecimiento activo, con aparatos de gimnasia y espacio para ejercitarse, que incluirán un espacio de calistenia.
Junto a la zona biosaludable, un parque infantil para el disfrute de los mas pequeños. Se ha pensado también en la gente joven y los adolescentes, y para ellos se creará un parque de aventuras con una gran tirolina. Habrá una pradera equipada y transitable. En el extremo sur; una pradera de juego, protagonizada por un elemento icónico y central como será una gran 'Naranja'.
En este sentido, el concejal de Urbanismo, Sergio Toledo, ha resaltado: que esa zona infantil con el elemento icónico de la Naranja contará con diferentes toboganes, con más de 8 metros de alto y 17 metros de diámetro. Será una atracción emblemática, como todas las de este parque, que no están ni en el resto de la ciudad o la provincia. Esta zona de la naranja será nuestro particular ‘Parque Gulliver’”.
En esta primera fase, citaaba ala alcaldesa, también habrá una zona de agua, con fuentes y géiseres, que aportará frescor y valor ambiental. "Porque el agua es vida, ha señalado la alcaldesa, y no podía faltar este elemento, uno de los más solicitados por nuestros vecinos y vecinas”.
Apuesta por la participación ciudadana

La alcaldesa ha recordado, que Censal Parc es un proyecto que ha contado con una de las mayores campañas de participación ciudadana realizadas en la ciudad, por lo que se puede decir, que el bosque urbano nace de la voluntad de todos los castellonenses. Una participación or medio de campañas y encuestas que contó con las sugerencias de más de 7.000 personas, y que han servido para trazar las líneas del proyecto que quería la ciudadanía.
Para Carrasco, “Censal Parc será mucho más que un espacio verde. Será un lugar de encuentro, de convivencia intergeneracional, de salud y también de identidad que conectará el Castellón de ayer, de hoy y del mañana. Un parque que quiere ser la imagen de ese Castellón que quiere encarar su Tercera Transformación. Una ciudad que siempre se ha distinguido por su calidad de vida. Un parque para pasear, para vivir en familia, para practicar deporte, para disfrutar de la cultura. Un parque sostenible, accesible, inclusivo y sin barreras”.
El concejal de Urbanismo, Sergio Toledo se ha referido también a las otras fases del Parc Censal. La segunda, ha indicado, será la más cercana al Palau de la Festa. Y la tercera, será la que cierre el proyecto con la Ronda de Circunvalación.
Excelencia en la valoración de la UE

La directora de la Oficina de Planificación y Proyección Económica, Carmen Vilanova, ha ofrecido más detalles de la valoración que ha tenido este proyecto por parte de la Unión Europea, que ha hecho que sea merecedor de fondos europeos, basada en tres bloques.
Vilanova ha resaltado que “estos tres bloques son la participación ciudadana, otro es la resiliencia del parque y el tercer bloque es la alineación con toda la corriente de la nueva ‘Bauhaus’ Europea. En el caso de Censal Parc la puntuación general media es del 84% con la que la Comisión califica esta infraestructura como ‘excepcionalmente alineada con la nueva Bauhaus Europea’, y esto es importantísimo para nosotros”.
“Lo que más ha valorado la Comisión Europea ha sido el mantener esa idea del espíritu del parque, sobre todo el mantener esa esencia agrícola de Castellón y tenerla como eje principal de diseño del parque”, ha resumido Vilanova.
Arbolado y pavimentos sostenibles




El arquitecto municipal, Ángel Beltrán, ha comentado también algunos aspectos relevantes de este gran proyecto, “como es su arbolado, con una zona de bosque urbano que está pegada a la Ronda Este, pero también alrededor de todas la zonas para generar sombra, así como en la Alameda y los caminos. Son todos árboles autóctonos de la zona. Beltrán también se ha referido al carácter histórico de Censal Parc “con unos puntos de acceso al parque que rememoran las alquerías, con palmeras”.
Del mismo modo ha resaltado los pavimentos que se utilizarán, con mucha superficie de albero en paseos principales y baldosas de hormigón de grandes dimensiones que permiten la infiltración natural de agua. Se pretende que todas las circulaciones sean accesibles para todo tipos de usuarios”.
También se ha jugado con un pavimento blando, el más idóneo para cada una de las parcelas y usos. Y se ha configurado para el aprovechamiento del agua de lluvia que alimentará la zona de agua.









































